Interier+ 1

Promocijska cena
€270.00 €189.00

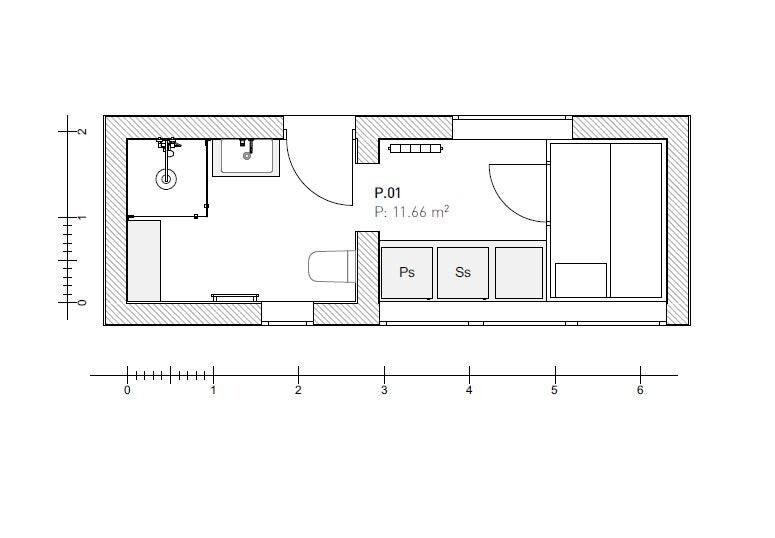
Detajlni izris interierja prostora (velikosti do 25m2) s tlorisnim prikazom in 3D vizualizacijo.

Na podalgi poslane fotografije in vaših izmer prostora vam skladno z vašimi željami pripravimo en tlorisni izris postavitve opreme dopolnjen s 3D vizualizacijo.

*Vizualizacija je zgolj informativnega značaja.

Ponudba ne vključuje naknadnih popravkov. Za korekcije in spremembe vizualizacije je potrebno naročiti dodateno storitev.

 

 

 

Izberi druge opcije paketa Interier+